- Интернет магазин замков
- •
- Каталог товаров ⭐
- •
- Доводчики дверей 🌟
- •
- Доводчик скрытый RYOBI COU-53 SLD R до 65 кг правый ⚡️
Доводчик скрытый RYOBI COU-53 SLD R до 65 кг правый
Артикул: 11437
В наличии
Нашли дешевле?
Снизим цену!
Доставка
Оплата
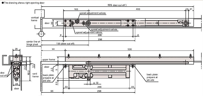
Продукция японского производителя RYOBI по праву признана во всем мире благодаря своему отличному качеству. Данная модель RYOBI COU-53 SLD R - это скрытый доводчик. Главной его фишкой является минимальное вмешательство в дизайн помещения. На практике это буквально означает, что он спрятан внутрь дверной коробки и полотна и совершенно незаметен, когда двери закрыты. Устанавливается врезным монтажом на правосторонние дверные полотна массой до 65 кг и максимальным размерами 950х2100мм. Гидравлический привод обеспечивает четкую работу доводчика. Непосредственно на корпусе есть возможность регулировать начальную и конечную скорость, а также скорость дожима двери. Благодаря этому можно достичь индивидуальной настройки закрытия дверей так как Вам нужно. Особенностью доводчиков RYOBI есть специальное термоконстантное масло. Оно обеспечивает стабильную работу даже при большом перепаде температур. Вообще рабочая температура варьируется в диапазоне от -20°С до +45°С. Комплектуется исключительно скользящей тягой, толщина рейки которой составляет 29 мм. Сам же доводчик изготовлен по технологии литья под высоким давлением. Благодаря этому прослужит максимально долго и является одним из надежных в своем классе.

Доводчик - это устройство автоматического закрывания дверей. Поэтому, выбирая его, вам нужно определить тип доводчика вам нужен.
Различают их по типу монтажа:
Накладные: крепятся сверху на полотно, коробку или стену.
Напольные: подходят для дверей без коробки, например, стеклянных. Монтируются снизу, с одной стороны к створке, с другой - непосредственно к полу..
Скрытые: механизм находится внутри полотна. .
После чего нужно определить ширину и вес дверного полотна, с которым он будет работать, и где он будет установлен - на улице или в помещении. Это является важным при выборе. Также нужно понимать какой будет проходимость людей (то есть - как часто двери будут открываться). Понятно, что чем больше эти значения, тем сильнее и надежнее доводчик Вам нужен.
Также следует понимать дополнительные функции Вам нужны. Кроме стандартного дотягивания дверного полотна, более дорогие модели имеют функцию фиксации в открытом положении. Это создает дополнительное удобство, ведь можно зафиксировать дверь в открытом состоянии. Существуют нюансы и относительно места установки. К примеру, если мешает стена, то нужно ставить монтажную пластину или доводчик со скользящей тягой - он выглядит гораздо эстетичнее, но ставят его в основном на легкие двери.
Рекомендация: при выборе возможны и другие нюансы и индивидуальные особенности, поэтому советуем обратиться за советом к нашим специалистам, которые подскажут какой именно доводчик Вам лучше всего подойдет.
| Прочие | ||
| Тип товара | Доводчик скрытый | |
| Производитель | RYOBI | |
| Страна производитель | Япония | |
| Модель доводчика | RYOBI COU-53 SLD R | |
| Способ монтажа | врезной | |
| Вес дверей | до 65 кг | |
| Тип тяги доводчика | скользящая | |
| Фиксация открытого положения | Нет | |
| Противопожарный сертификат | Нет | |
| Гарантия | 1 год | |
В наличии
Нашли дешевле?
Снизим цену!
Доставка
Оплата